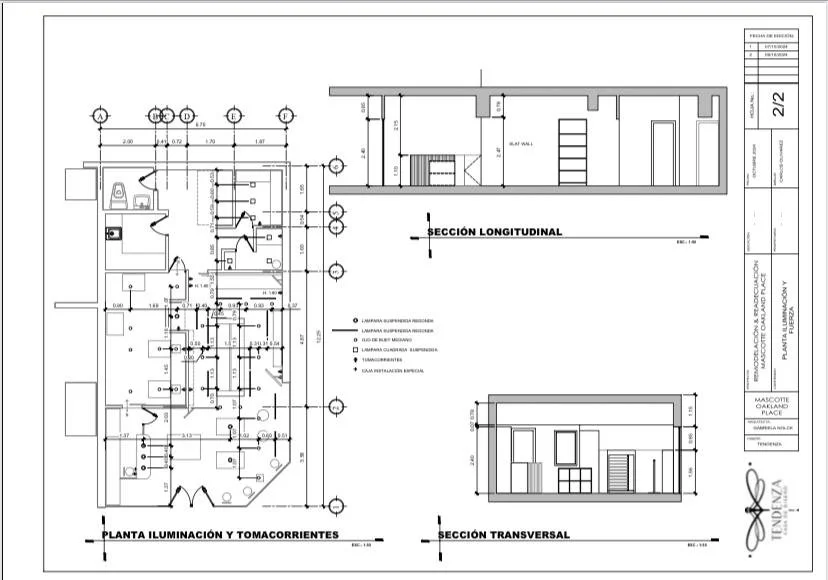
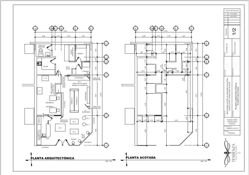
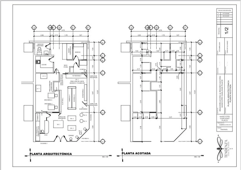
Diseño Remodelación de Interiores, Planos y Render Tienda Mascotte, Oakland Mall Ver tamaño completo Ver tamaño completo Ver tamaño completo Ver tamaño completo